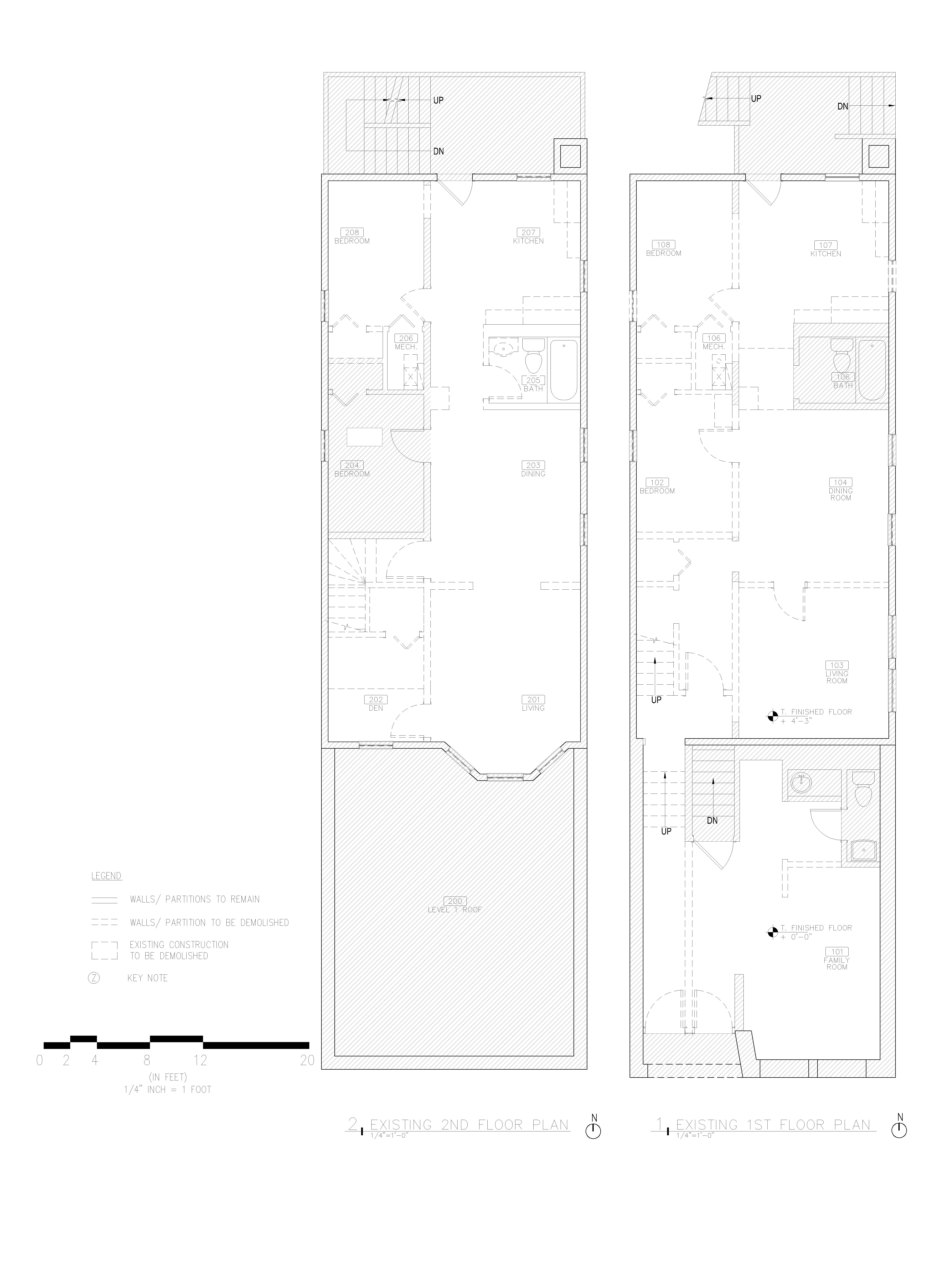
MRA worked with family to deconvert existing wood frame 2 flat and convert to Single Family Home. The 1st floor was opened up into a open plan Living, Dining, and Kitchen area. A feature stair was opened up to the 2nd floor where a master bedroom, 3rd bedroom, and light filled multi-purpose space were added.



Scope: Design consultation, Permit documents, Permit submission and administration.
