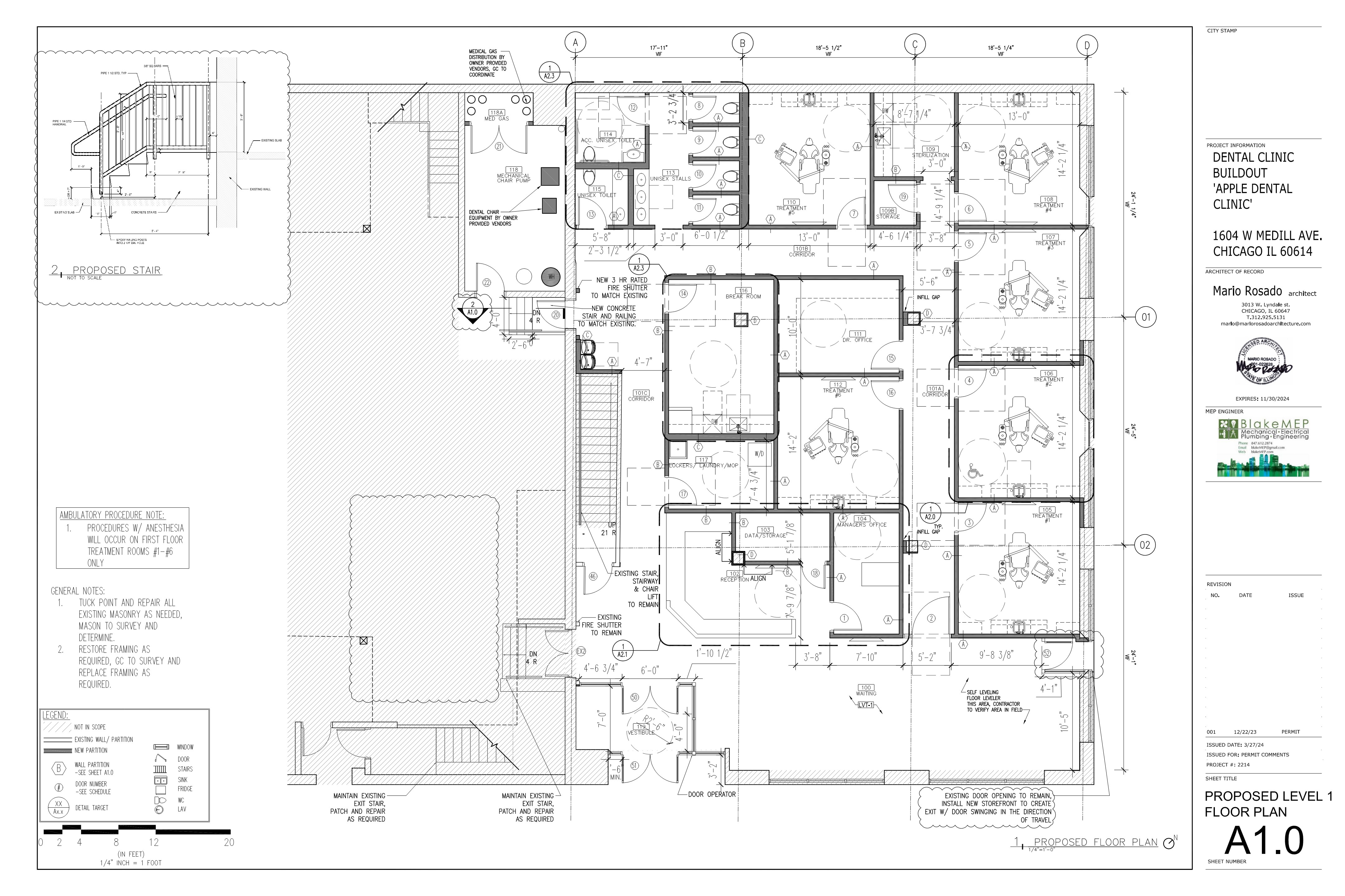
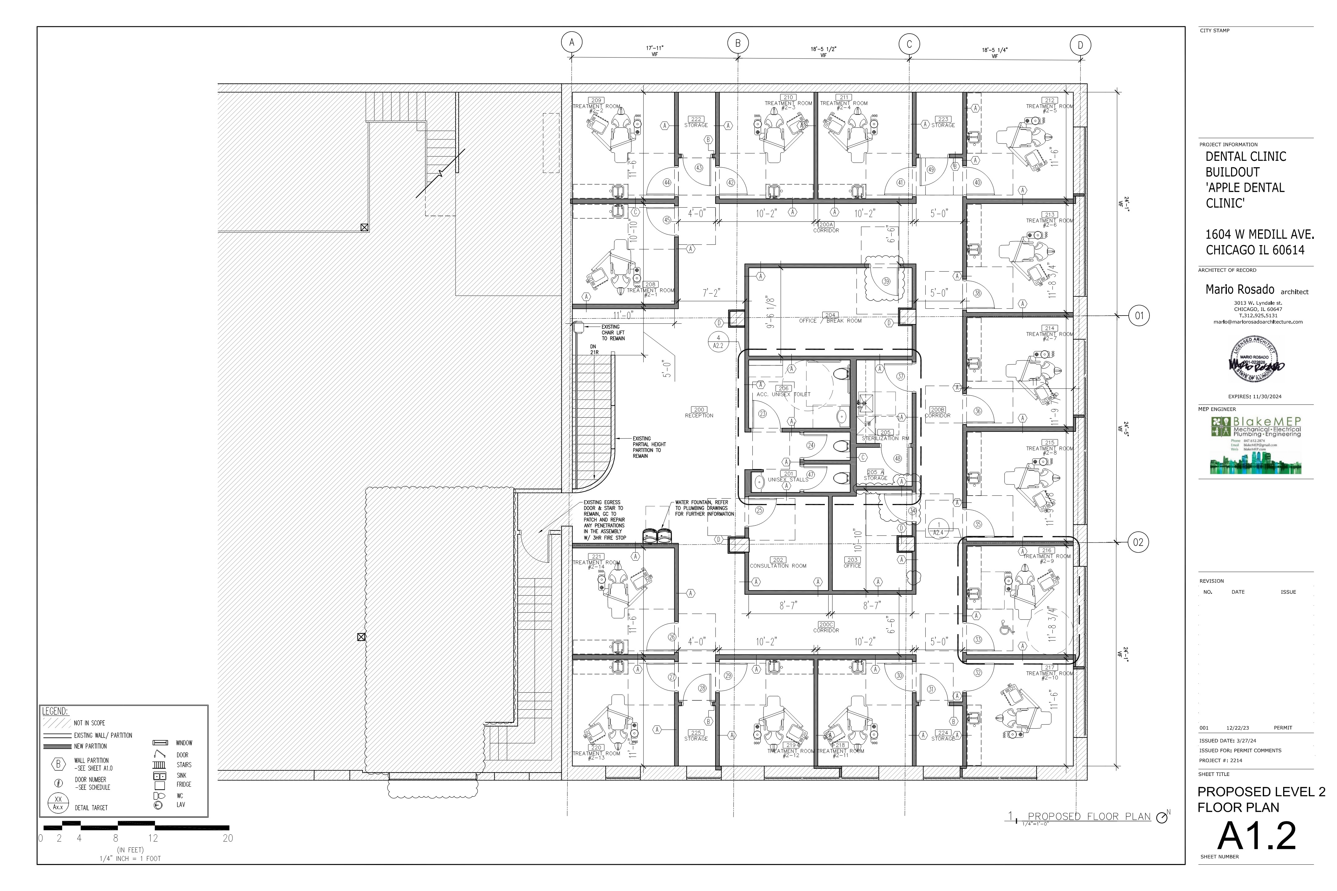
I am proud to share the completion of the new Apple Dental Care Clinic at 2340 N. Clybourn. Transforming an 8,263 SF existing office building into a state-of-the-art, two-story medical facility required a complete gut renovation and a focus on specialized clinical workflows.
This expansion was designed to push the boundaries of what the practice can offer. We implemented 20 treatment rooms with a spacious footprint specifically to allow anesthesiologists to work side-by-side with the dental professionals—significantly expanding the clinic’s treatment capabilities.
The new facility includes:
- Two-Story Transformation: A total of 8,263 SF of modernized medical space.+1
- Advanced Treatment Rooms: 20 rooms designed for multi-professional collaboration.
- Staff & Admin Support: Dedicated back-of-house facilities and administrative offices.
- Patient Comfort: Shared bathrooms and welcoming spaces for patients and their visitors.
By measuring the specific needs of the practice, we were able to deliver a systematic design that accelerates their progress and supports their growth. Congratulations to @appledentalcarepediatric on your incredible new space!
Let’s make your dreams come true!
📍 2340 N. Clybourn, Chicago 🔗 mariorosadoarchitecture.com/contact/









